Interface switchboard CEI0-21 SPACE from 50 to 125kW

QUADRO INTERFACCIA SPACE CEI 0-21 3F+N 125kW – 1 INVERTER

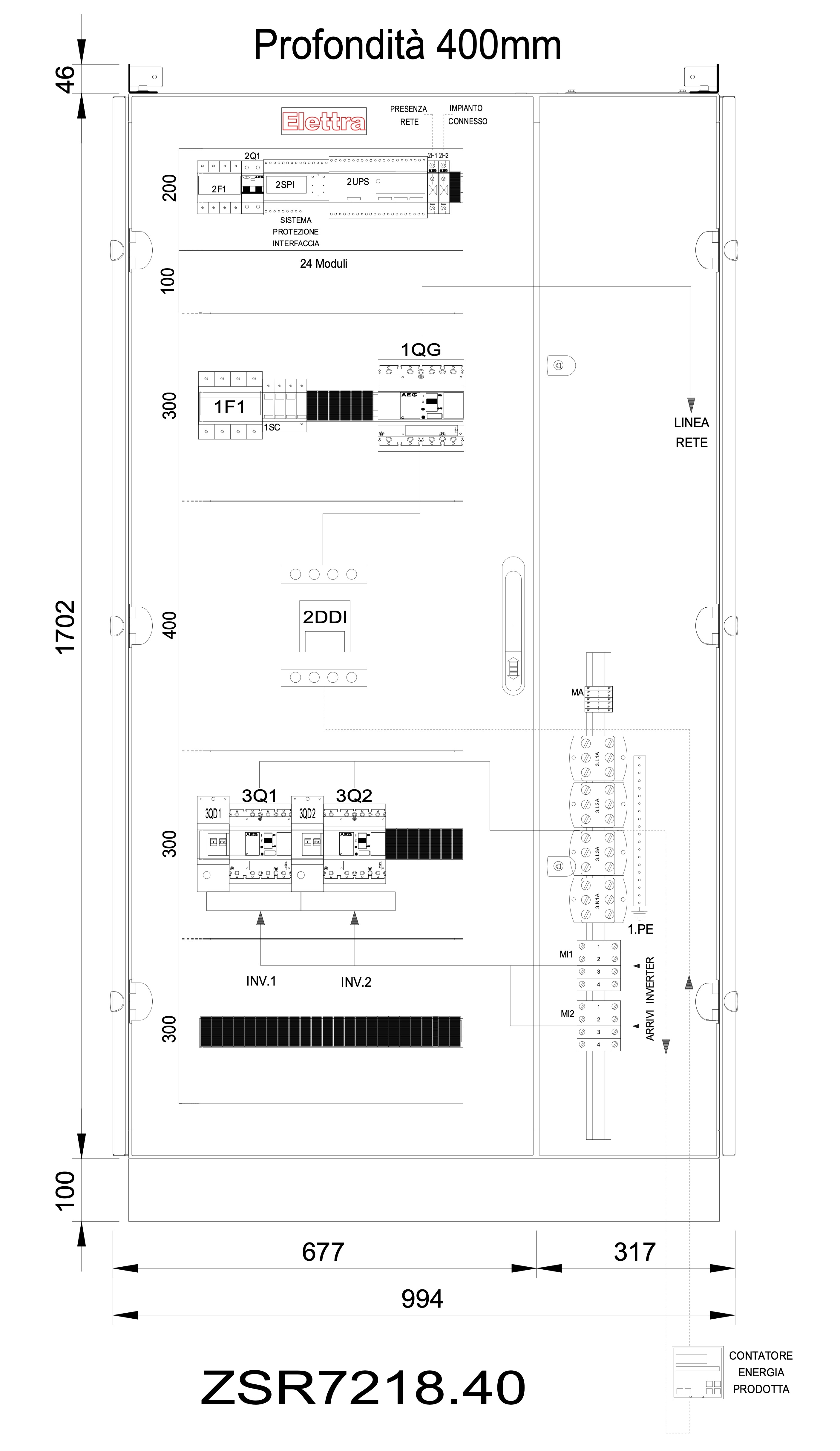
PVQI125-1R

Quadro interfaccia CEI 0-21 per impianti fotovoltaici di potenza limite 125 kW. Il quadro è composto da: interruttore automatico magnetotermico 4x200A 36kA + rincalzo, protezioni inverter tramite interruttore magnetotermico differenziale in classe A 300 mA o con Id regolabile, contattore DDI 4P 190A AC-3, scaricatore di Tipo 2, relè di interfaccia NA003 con soccorritore secondo CEI 0-21, interruttore magnetotermico differenziale per protezione ausiliari, lampade di presenza tensione e impianto connesso. Tutti i componenti sono racchiusi all’interno di un contenitore metallico IP55 con porta vetro + vano laterale, dimensioni LxHxP 994×1800×400 mm.

+

Downloads and Resources

Download informative and technical materials to learn more about the features of our products.

Rated Voltage AC

400 V

Rated Power

125 kW

Protection main switch

MCXT3N4250

Short circuit capacity EN60947-2 Icu at 400V

36 kA

Number of poles main switch

4

Main switch rated current

250 A

Type of over voltage protection device

Type 2

Mounting method

floor

Housing material

Steel

Protection degree

IP55

Width

700+200 mm

Depth

400 mm

Colour

Grey

RAL-number

7035

Net Weight

150 kg

Standard

CEI0-21, EN61439-1, EN61439-2

Brand

ELETTRA

Come visit us at KEY 2026

March 4–6 · Rimini Exhibition Center
Pad. D1 – Stand 500

Discover our new solutions for the energy transition